(0人がお気に入り)
Image Station COM 4階
事務所 事務所(オフィスビル)
賃料
425,612円(税込)(坪単価
@9,350円(税込))
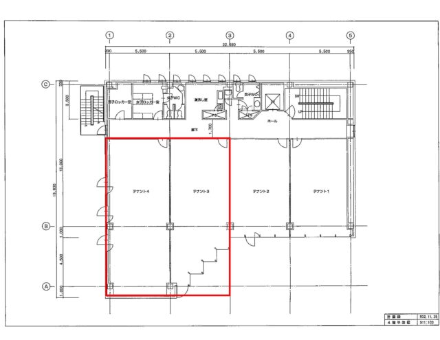
広さ150.48㎡(45.52坪)
石川県金沢市松島2-191
北鉄バス 古府南 徒歩6分
金沢バイパス(国道8号線)まで車で約2分の好アクセス! 専用駐車場は約10台分確保可能。 さらに、来客用駐車場も別途8台分完備しています。
地図で見る
金沢バイパス(国道8号線)まで車で約2分の好アクセス! 専用駐車場は約10台分確保可能。 さらに、来客用駐車場も別途8台分完備しています。
詳細情報
所在地・交通
| 所在地 | 石川県金沢市松島2-191 |
|---|---|
| 交通 | 北鉄バス 古府南 徒歩6分 |
基本情報
| 店舗形態 | 事務所, 事務所(オフィスビル) |
|---|---|
| オススメ業種 | 事務所 |
| 物件名 | Image Station COM 4階 |
| 物件の状態 | 空き |
| 引き渡し時期 | 即 |
| インボイス登録 | 登録あり |
| 契約形態と期間 | 普通建物賃貸借契約 契約期間:2年間,自動更新 更新料:なし |
建物
| 建物構造 | 鉄骨造 |
|---|---|
| 建物階建て | 地上5階建て |
| 施工年月 | 1993年07月 |
| 募集物件の階数 | 4階 |
| 契約面積 | 150.48㎡(45.52坪) |
| 敷地面積 | ― |
| 用途地域 | 準工業 |
設備
公営水道、公共下水、エアコン(個別)、OAフロア、エレベーター、トイレ、給湯室、貸し会議室(有料)、機械警備、来客用駐車場
費用(月額)
| 賃料 | 425,612円(税込) |
|---|
月額費用合計 425,612円(税込)
費用(初期)
| 敷金 | 2,321,520円 |
|---|---|
| 礼金 | 425,612円(税込) |
| 仲介手数料 | 425,612円(税込) |
| 初回保証委託料 | ― |
初期費用合計 3,598,356円(税込)
駐車場
| 状況 | あり |
|---|---|
| 空き台数 | 要確認(10台) |
| 駐車料 | 6,600円(税込) |
取引情報
| 取引態様 | 媒介 |
|---|---|
| 客付 | 可 |
その他
| 備考 |
金沢バイパス(国道8号線)まで車で約2分の好アクセス!専用駐車場は約10台分確保可能。さらに、来客用駐車場も別途8台分完備しており、お車での来訪にも安心です。貸し会議室も備えているため、打ち合わせや商談スペースとしてもご活用いただけます。 ※電気料金は子メーターにて検針となります。 ※共益費(水道料・共用部清掃費・セコム機械警備費・ゴミ処理費〔大型ごみを除く〕)は賃料に含まれています。 |
|---|